最後一間
高士德 唯一大單位新盤
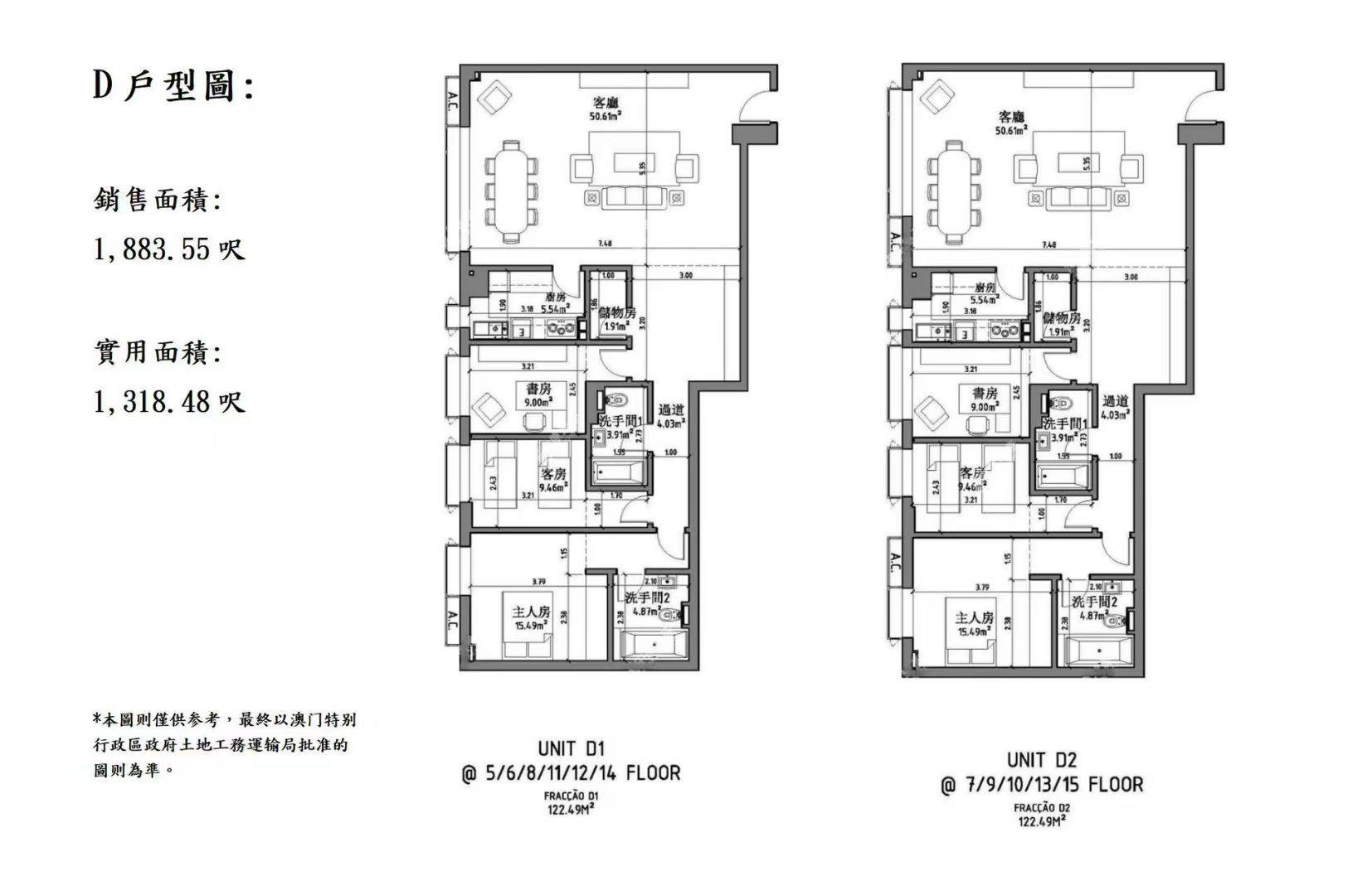
HK799萬 買1900呎 4房
$4099/呎
免佣金
最後幾間
即將售完
校網區新盤
紅街市隔離
返工返學超方便
巨廳巨房 全屋Miele Duravit 頂級用料
僅售$4099/呎起
PM即send價單
約看速電
6692 4246 何生 直接代理
歡迎業主委託放盤! 免費推廣+單位拍攝+銀行估價!特快成交!
更多荀盤: https://mtapartment.com
Facebook: Macau Taipa Apartments 澳門氹仔優質樓盤
Instagram ID: mtapartments
WeChat ID: mtapartments








Facebook Comments